ID CP2874985

Cel mai bun pret!! Penthouse view spectaculos zona verde in Pipera

ID CP2874985

279,000 € (negociabil)

Apartament cu 4 camere de vânzare
Nord, Voluntari
151 mp
2024

Terra Estate - primul pas catre acasa!

Va propunem un penthouse cu 4 camere si terase imense

excelent pozitionat in apropierea padurii in Pipera, care se reliefeaza prin eleganta si concept arhitectural modern.

Pozitionarea optimizeaza timpul dumneavoastra, fiind intr-o zona linistita ,

ce ofera confortul si ambianta unui mediu relaxant, natural si primitor

Este format din living cu bucatarie open space si 3 dormitoare,

Stilul modern imbina armonios linistea zonei cu confortul dat de accesul rapid catre facilitati edilitare urbane.

catre mijloacele de transport, zona de centre comerciale, scoala gradinita, etc. atit de necesare familiilor moderne.

Construit din materiale de calitate incontestabila chiar daca este la etajul retras are pod inalt ce permite

depozitarea si asigura o buna izolare.

Pretul este unul modic, avand in vedere suprafata totala de peste 270 mp.

Citește mai mult

  • Tip apartament
    Apartament
  • Compartimentare
    Semidecomandat
  • Număr camere
    4
  • Dormitoare
    3
  • Număr băi
    3
  • Etaj
    3
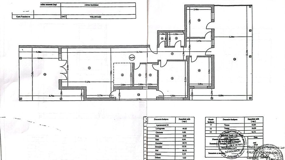
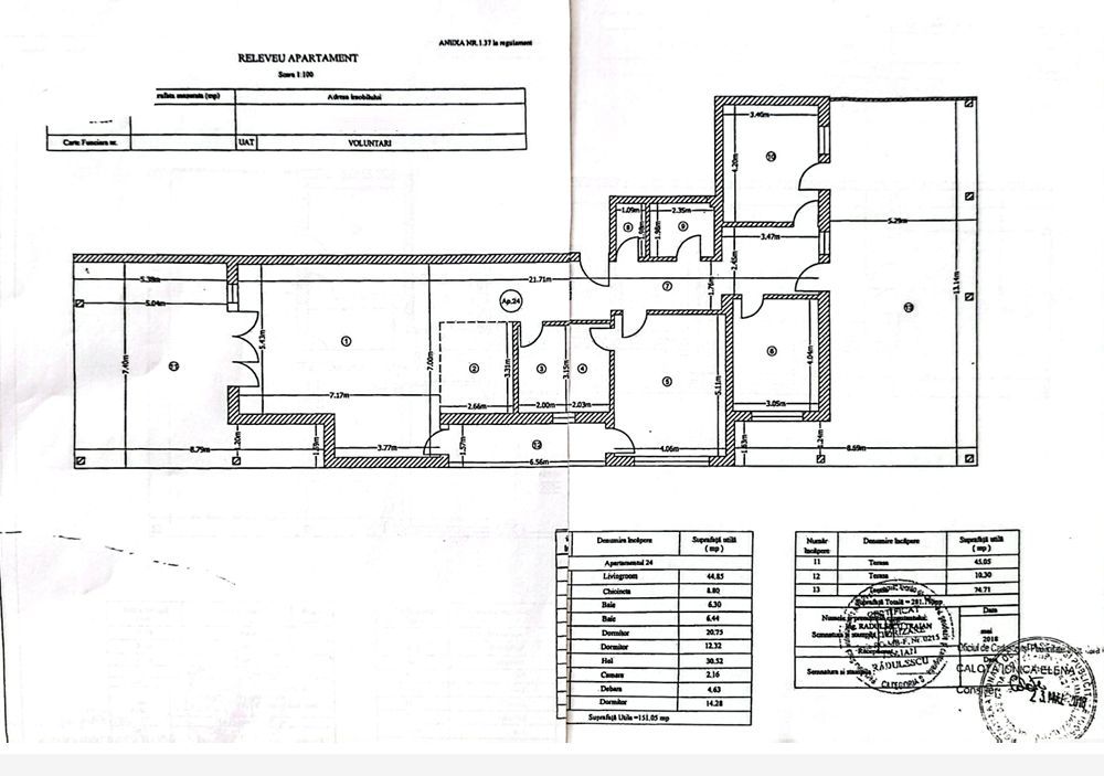
  • Suprafață utilă
    151 mp
  • Suprafață totală
    281 mp
  • Suprafață terasă
    130 mp
  • Disponibilitate
    Imediat
  • Orientare
    Sud-Est
  • Stare interior
    Semifinisat
  • Anul finisării
    2025
  • Număr balcoane
    2
  • Număr terase
    2
  • Număr locuri parcare
    2
  • Imobil
    Bloc de apart.
  • Stadiu construcție
    Semifinisat
  • An construcție
    2024
  • Construcție nouă
    Da
  • Tip construcție
    Beton
  • Număr etaje clădire
    3
  • Număr etaje retrase
    1
  • Are pod
    Da

Facilități

Acoperiș
Apă
Bucătărie deschisă
Cabină de duș
Cadă
Canalizare
CATV
Centrală proprie
Contor electric
Contor gaz
Curent
Faianță
Gaz
Geamuri termopan
Gresie
Iluminat stradal
Încălzire prin pardoseală
Internet
Izolație exterioară
Mijloace de transport în comun
Nemobilat
Parchet
Străzi asfaltate
Telefon
Ușă intrare metal
Vedere panoramică
Vopsea lavabilă
Viorel Stoean - Terra Estate
Viorel Stoean
Broker Owner

0725251195


Solicită chiar acum o vizionare
Telefon
Sună acum Solicită vizionare
Necesare:

Site-ul nu poate funcționa corect fără aceste cookie-uri. Vezi cookie-urile

Statistică:

Strângem statistici anonime despre voi, vizitatorii unici, pentru a vă îmbunătăți experiența dumneavoastră. Vezi cookie-urile

Marketing:

Pentru a ne promova mai eficient serviciile noastre, folosim cookies pentru a vă identifica și a vă oferi proprietăți și servicii personalizate. Vezi cookie-urile

Acest site folosește cookies, află detalii. Alege ce tipuri de cookies dorești să permitem: