ID CP2115507

Terasa 78 mp!!! Apartament 2 camere, complex Maramures-Otopeni

ID CP2115507

115,000 €

Apartament cu 2 camere de vânzare
Sud-Vest, Otopeni
36.7 mp
2023

Terra Estate - primul pas catre acasa!

Va propunem spre vanzare un apartament cochet, la parterul inalt, cu o terasa foarte generoasa,

situat in complex Maramures din Otopeni, edificat in 2023.

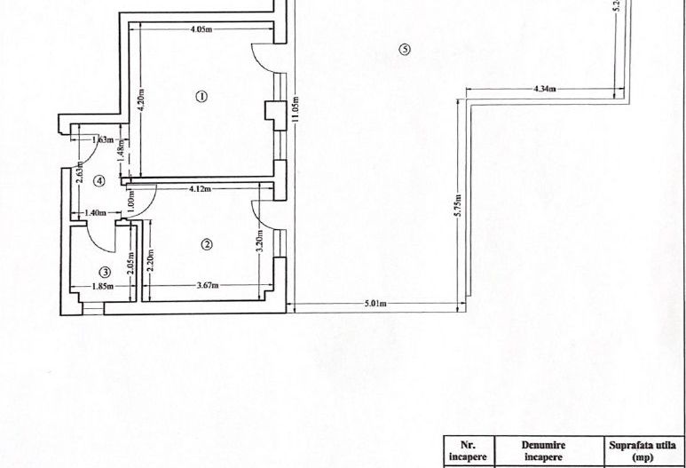
Apartamentul este compus dintr-un living cu bucatarie open space, un dormitor, o baie, un hol cu o suprafata utila de 36,7 mp si o terasa de 78,3 mp avand o suprafata totala de 115 mp.

Cel mai mare avantaj il constituie bucataria mobilata si utilata partial si terasa ce permite inchiderea unui spatiu de 50 mp.

Imobilul se vinde cu toate obiectele sanitare, dulap pe hol, dulap in baie, mobila de bucatarie ce are plita electrica si hota.

Beneficiile majore sunt locurile de joaca pentru copii, supermarket in complex, deschidere si catre strada EROILOR, spatii verzi in interiorul complexului

Locul de parcare este 10000 euro.

Pretul de vanzare este de 104.900 euro, usor negociabil!

Citește mai mult

  • Tip apartament
    Apartament
  • Compartimentare
    Semidecomandat
  • Număr camere
    2
  • Dormitoare
    1
  • Număr bucătării
    1
  • Număr băi
    1
  • Geam la baie
    Da
  • Etaj
    2
  • Suprafață utilă
    36.7 mp
  • Suprafață construită
    43 mp
  • Suprafață totală
    115 mp
  • Suprafață terasă
    78.3 mp
  • Disponibilitate
    Imediat
  • Orientare
    Sud-Vest
  • Confort
    1
  • Stare interior
    Nou
  • Anul finisării
    2024
  • Număr terase
    1
  • Număr locuri parcare
    1
  • Imobil
    Bloc de apart.
  • Stadiu construcție
    Finalizată
  • An construcție
    2023
  • Construcție nouă
    Da
  • Tip construcție
    Cărămidă
  • Număr etaje clădire
    2
  • Are demisol
    Da
  • Are mansardă
    Da
  • Cadastru
    Există
  • Intabulare
    Există
  • Mod de dobândire
    Contract
  • Certificat Energetic
    Există

Facilități

Apă
Apometre
Aragaz
Bucătărie deschisă
Bucătărie mobilată
Bucătărie parțial utilată
Canalizare
CATV
Centrală proprie
Contor electric
Contor gaz
Curent
Faianță
Ferestre PVC
Gaz
Geamuri termopan
Gresie
Hotă
Iluminat stradal
Încălzire prin pardoseală
Interfon
Internet
Izolație exterioară
Loc de joacă copii
Mijloace de transport în comun
Mobilat parțial
Parcare deschisă
Parchet
Pază
Străzi asfaltate
Telecomandă poartă acces auto
Telefon
Ușă intrare metal
Uși interior celulare
Vopsea lavabilă
Viorel Stoean - Terra Estate
Viorel Stoean
Broker Owner

0725251195


Solicită chiar acum o vizionare
Telefon
Sună acum Solicită vizionare
Necesare:

Site-ul nu poate funcționa corect fără aceste cookie-uri. Vezi cookie-urile

Statistică:

Strângem statistici anonime despre voi, vizitatorii unici, pentru a vă îmbunătăți experiența dumneavoastră. Vezi cookie-urile

Marketing:

Pentru a ne promova mai eficient serviciile noastre, folosim cookies pentru a vă identifica și a vă oferi proprietăți și servicii personalizate. Vezi cookie-urile

Acest site folosește cookies, află detalii. Alege ce tipuri de cookies dorești să permitem: